Concept
Building a theoretical position or question that structures the project investigation beyond immediate needs or individual project concerns. This provides a broader scope for the meaning of the work.
Tool: Generative Object – concept explored as 3D making, also facilitates dexterity with 3D visualization/ thinking. Transfers conceptual thought process to haptic, tactile, sensory process.
Site
Noble works of architectural history, i.e. the United Nations Building, or inspiring, humble works of craftsmanship, i.e. brick warehouse on the waterfront, were selected as sites of contemplation the minds of the builders and designers that conceived them.
Tool: Orthographic drawing of plans and sections to understand building character, elements, details.
Program
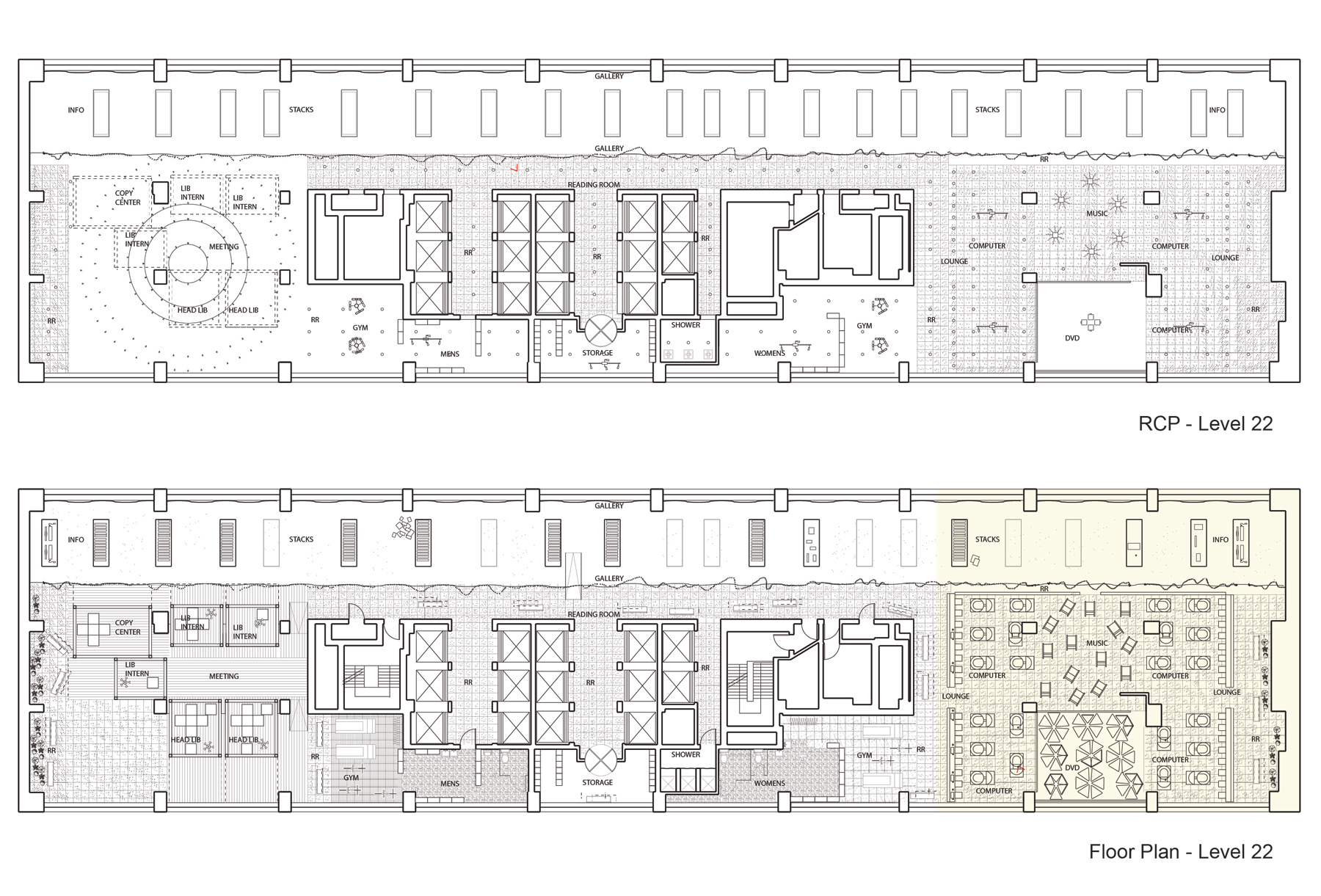
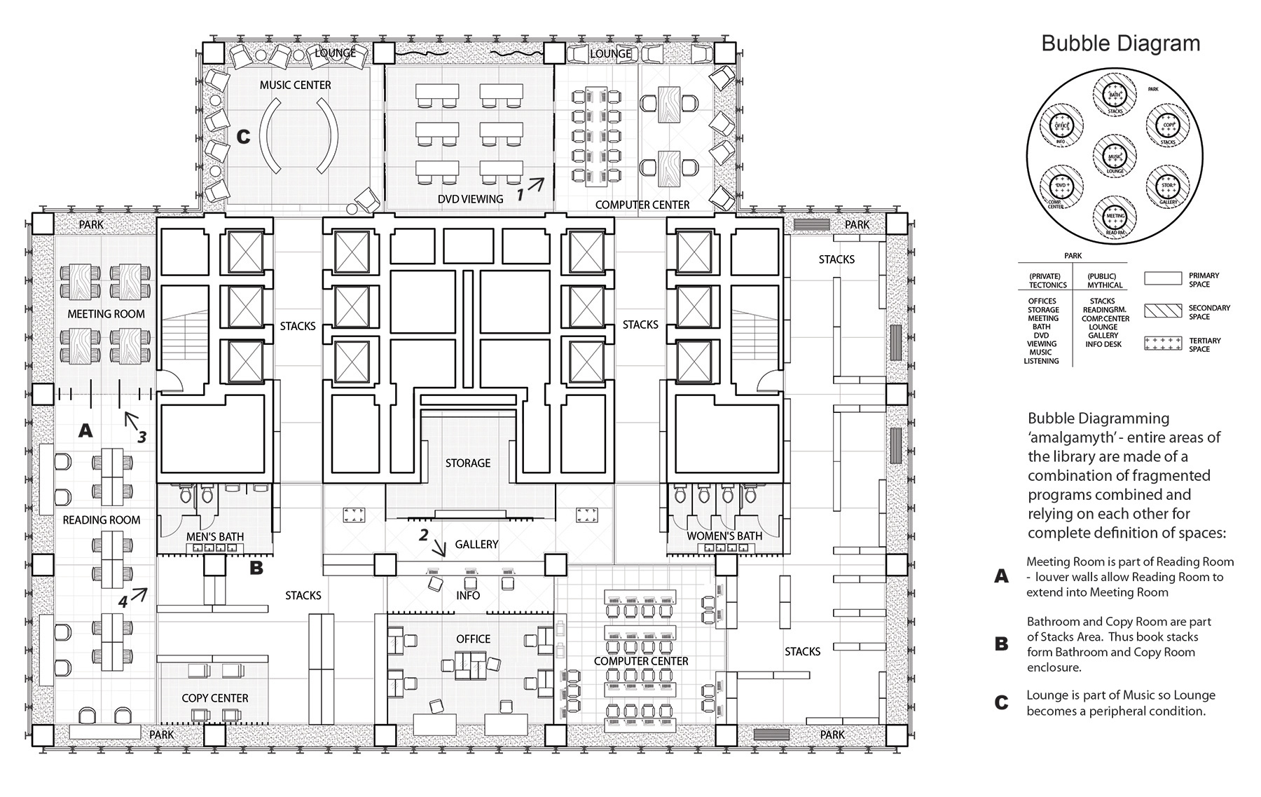
Spatial requirements intentionally exceeded space available. This caused the need to find space for activities in time, designing programmatic usage of space to occur in different time periods. Also, hybrid programmatic functionality, i.e., art gallery as curtains separating spaces.
Tool: Bubble Diagram allows quick studies and proposal of programmatic relationship, i.e., library within bathroom.
These lines of inquiry intersect, inform each other. Concept informs how Program is distributed, how Site is viewed.
Concept - literature, film
Generative Object – 3D making and drawing exercises
Site
Program - Bubble Diagrams 

student project - ‘uneven movement’

student project - ‘amalgamyth’
