ARC4101 - Architectural Design Studio IV
Semester 2, August-December 2025
KASUBI HILL SLUM UPGRADE
This fourth-year design studio introduced students to urban planning through the lens of informal settlement ‘slum’ upgrading. The studio invited students to rethink how vulnerable urban areas can be transformed through participatory, community-centered design, balancing spatial improvement with the social and economic realities of current residents.
PART I focused on mapping, documentation, and urban research. Students analyzed traffic flows, utilities, economic activity, waste management, topography, and socio-cultural conditions, synthesizing this data into a structural plan envisioning a future upgrade strategy for Kasubi Hill.
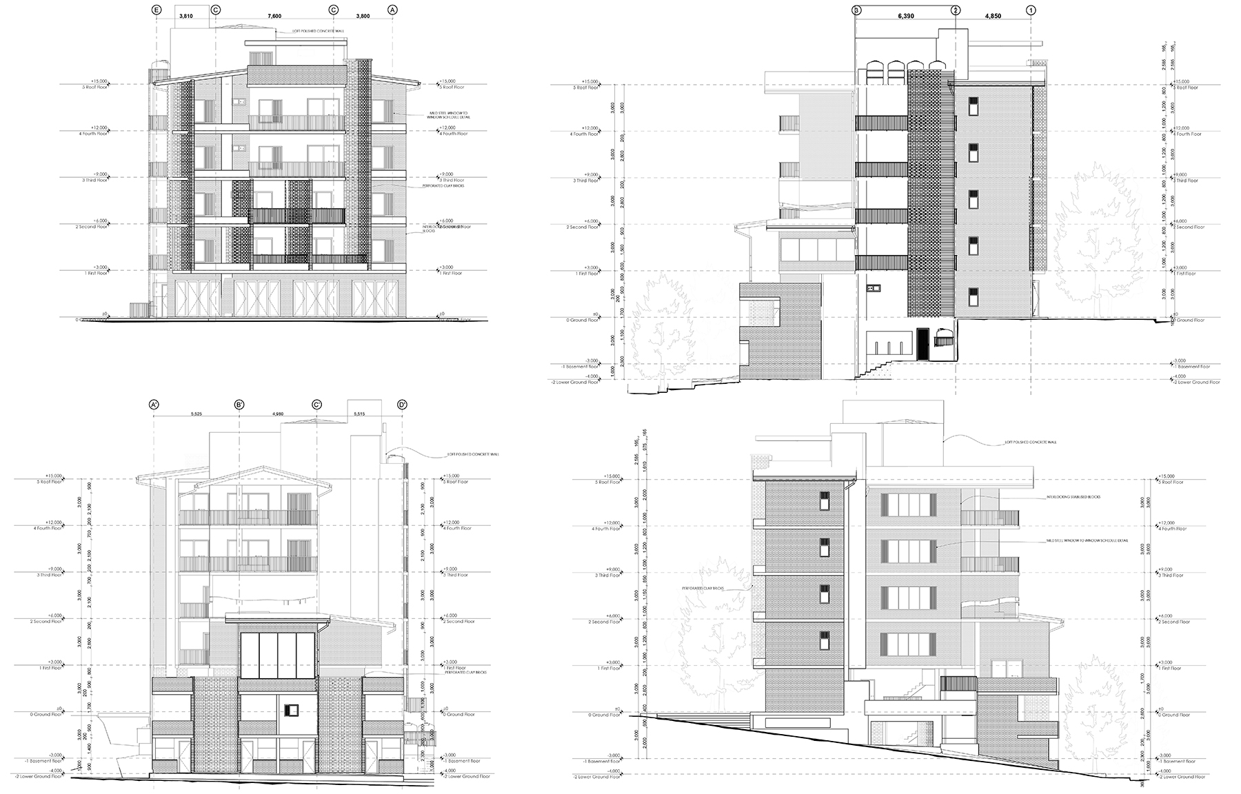
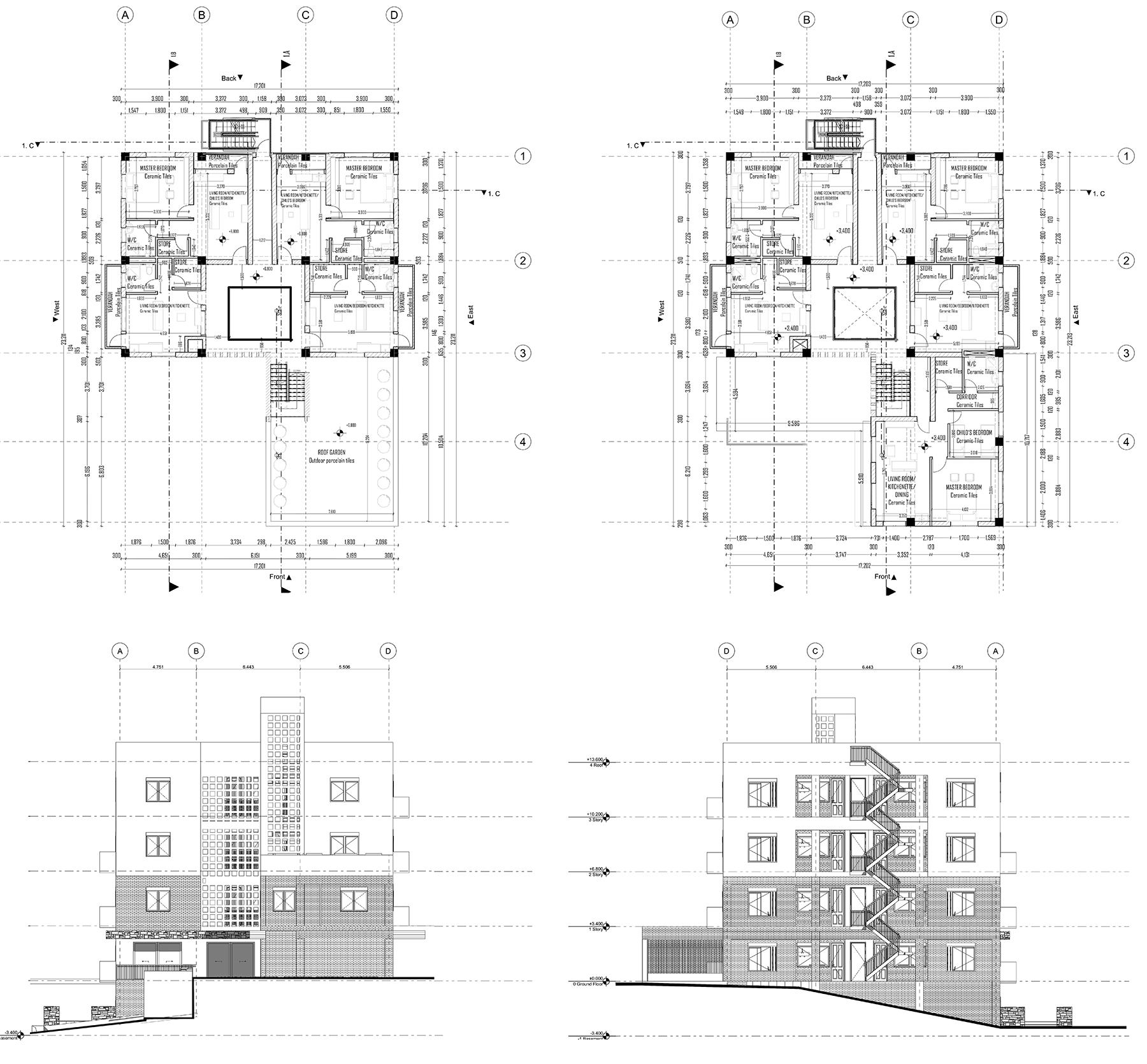
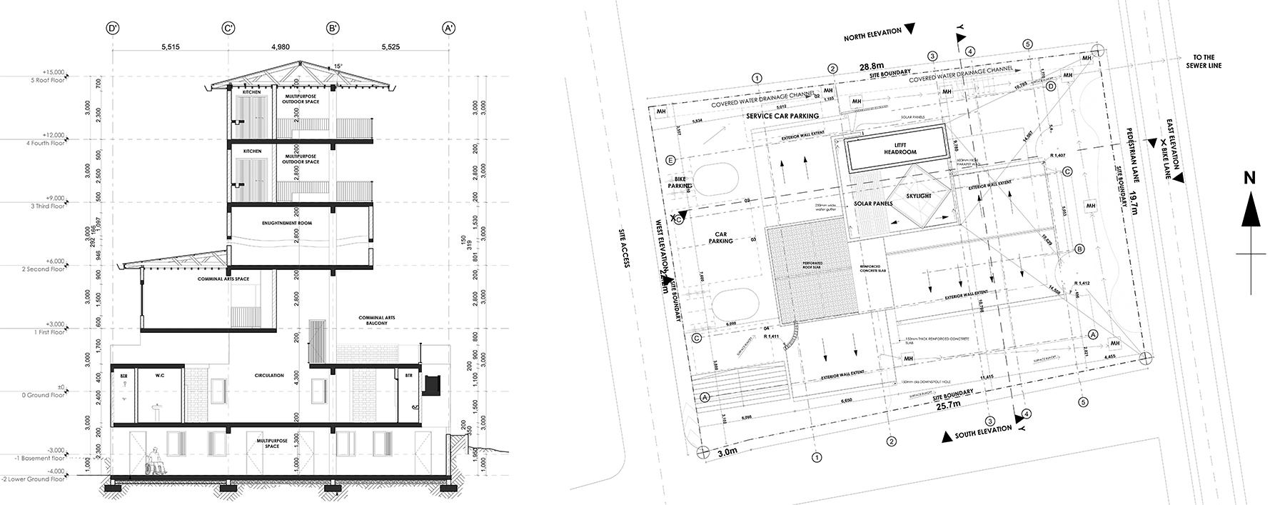
PART II asked students to translate this knowledge into architectural proposals. Each student selected a specific block and designed a multi-story, mixed-use residential building responsive to local needs and constraints. Considerations included solar orientation, water harvesting, waste removal, low-cost cooking methods (e.g., charcoal), and small-scale energy systems. Recognizing the prevalence of home-based enterprises, students integrated flexible mixed-use typologies while exploring how architecture can support resilience, dignity, and a strong sense of community.




project A - sections, renderings, and model



project B -concept sketches, plan axonometric, models, elevations, renderings, and section axonometric







project C -concept sketches + maps, typical unit plans, sketch sections, plans, renderings, elevations, site pan

project D -concept sketches, plans, elevations, model
